Budowlane handlowe rekreacyjne sprzedam 4ha super
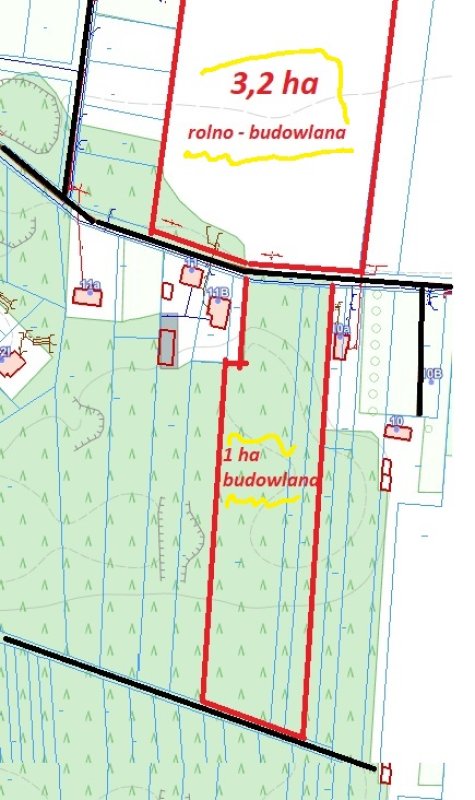
Sprzedam grunt budowlany o powierzchni 4 hektarów, położony w miejscowości Wypychów-Podlesie, przy trasie Łask-Częstochowa. Działka przeznaczona pod zabudowę jednorodzinną, z możliwością podziału, oferuje dwie asfaltowe drogi dojazdowe oraz pełny dostęp do mediów, takich jak prąd i woda, w ulicy. Okolica wyróżnia się ładną zabudową, co zwiększa atrakcyjność inwestycji. Sprzedaż odbywa się bezpośrednio, bez pośredników, a cena i wielkość są do uzgodnienia. Istnieje również opcja rozliczenia w formie nieruchomości lub pojazdu, co otwiera elastyczne możliwości zakupu, zapraszamy do negocjacji.
Podsumowanie wygenerowano automatycznie.Pełna treść oryginalnej oferty poniżej.

Szczegóły ogłoszenia Kategoria: Działki i grunty/Sprzedaż Pow. Działki: 40000m2 Rodzaj działki: Budowlana Sprzedaż: Bez pośredników Opis oferty Sprzedam grunt i działki pod budowę - miejscowość WYPYCHÓW - PODLESIE trasa Łask - Częstochowa = w okolicy ładna zabudowa - media w ulicy, dwie drogi dojazdowe asfaltowe. Zabudowa przewidziana - jednorodzinna - nieruchomość możliwość podziału, dogodny dojazd z dwóch stron media przy działkach w ulicy - prąd, woda. Wartość rynkowa to ok 1,5 mln zł Cena i wielkość do uzgodnienia - w rozliczeniu lokal lub mieszkanie, dom, ew. Jacht, auto terenowe itp... Zapraszam oferenta do negocjacji | |||
Atrybuty: | prąd, woda, | ||
- Formularz kontaktowy
- Kontakt dostępny po zalogowaniu...
Jeśli nie masz konta zarejestruj się tutaj... »Rejestracja tutaj... » - Kontakt telefoniczny
- Telefon dostępny po zalogowaniu...
Jeśli nie masz konta zarejestruj się tutaj... »Rejestracja tutaj... »
|

